Das MACO hebt sich als ein Gebäude mit Charakter und Geschichte ab. Der Standort im Kunibertsviertel, repräsentiert eine einzigartige Mischung aus Tradition und modernem Unternehmergeist. Unternehmen, die auf Nachhaltigkeit und Authentizität Wert legen, finden im MACO eine zukunftsorientierte und repräsentative Adresse.





Das MACO ist das optische Highlight des Kunibertsviertels mit hervorragender Anbindung und Infrastruktur. Die Citylage bietet einen sehr guten Zugang zu den wichtigen ÖPNV-Verbindungen sowie die fußläufige Erreichbarkeit zu einem vielfältigen Gastronomie-, Einkaufs- und Kulturangebot. Das Gebäude selbst unterstreicht seine zukunftsorientierte Ausrichtung zudem mit seinen nachhaltigen Mobilitätslösungen.































Das MACO verkörpert Nachhaltigkeit und den Mut zur Veränderung. Anstatt eines Neubaus wurde bewusst in die Sanierung und Modernisierung des bestehenden Gebäudes investiert. Details des historischen Bestands sind liebevoll restauriert und moderne Technologien implementiert – beispielsweise mit Smart-Building-Lösungen, die im MACO eine optimale Energieeffizienz ermöglichen und dazu beitragen, den ökologischen Fußabdruck zu minimieren.

Die Kombination aus traditionellen Materialien und innovativem Design symbolisiert unser Engagement für ökologische Verantwortung und CO2-Reduzierung. Mit seiner beeindruckenden Fassade repräsentiert das MACO Dynamik, Nachhaltigkeit und zeitlose Architektur. Daran knüpft auch das ästhetische Gebäudeinnere an: Holzdesign und eine umfangreiche Begrünung schaffen eine einladende Atmosphäre, die die Balance zwischen Natur und modernem Arbeitsumfeld findet.

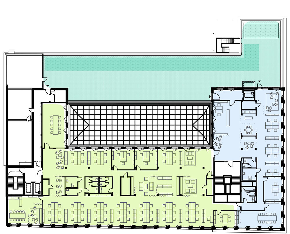
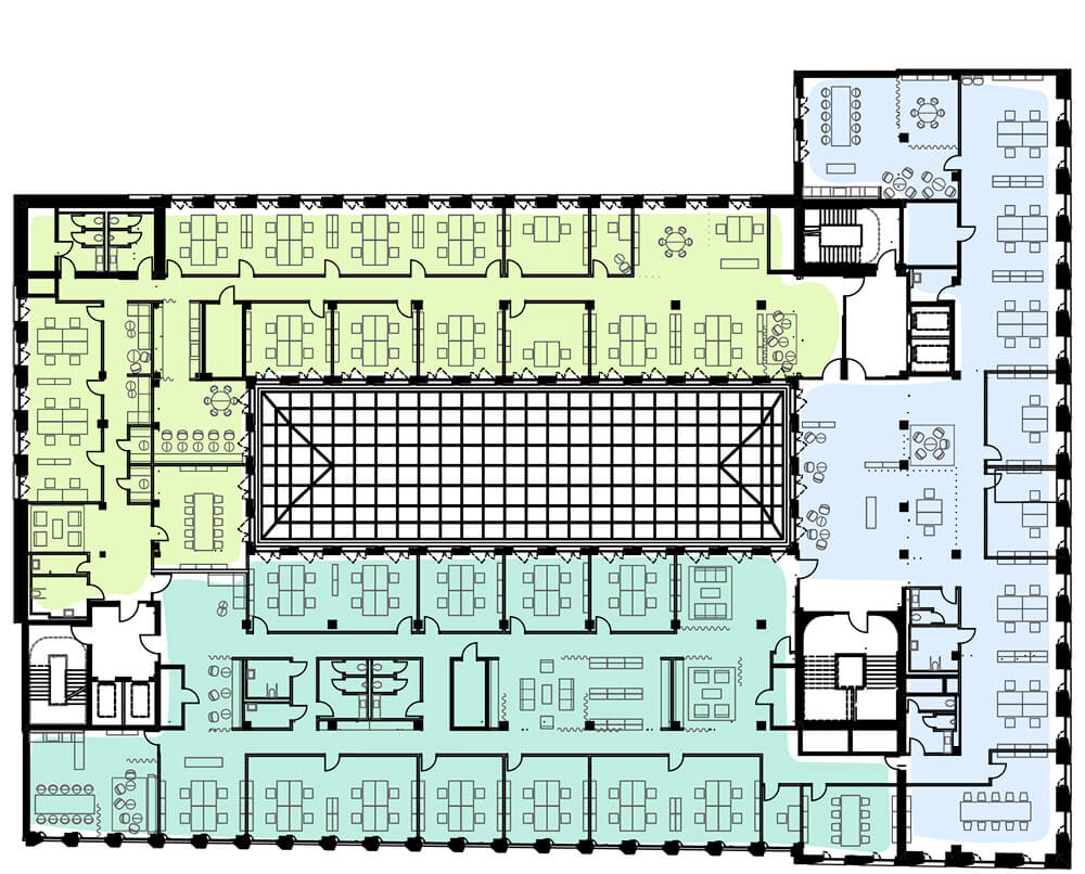
Das einladende Entrée mit dem einzigartigen Gartrium ist ebenso wie die beeindruckende Dachterrasse mit Domblick ein Treffpunkt für Gespräche oder eine Oase für Entspannung und Kreativität – mitten in der Stadt. Ganz auf die Bedürfnisse in einer modernen Arbeitskultur zugeschnitten, bietet MACO flexible und vielseitige Arbeitsbereiche. Mit multifunktionalen Besprechungsräumen und Eventflächen bis hin zu einer eigenen Bar und einem Bistro erfüllt das Gebäude alle Anforderungen an eine zukunftsorientierte Büroimmobilie.

Im Sinne eines umweltfreundlichen und zukunftsfähigen Mobilitätskonzeptes, finden Sie im MACO neben einem Parkhaus mit digitalem Parkraummanagement eine erstklassige Fahrradinfrastruktur mit Mobilitätsstation. Diese bietet von ausreichend wettergeschützten Radabstellplätzen über E-Bike-Ladestationen bis hin zu Leihfahrrad-Angeboten und einer Werkstatt für kleine Reparaturen alles, was nachhaltiges und attraktives Pendeln fördert.

Das MACO verkörpert Nachhaltigkeit und den Mut zur Veränderung. Anstatt eines Neubaus wurde bewusst in die Sanierung und Modernisierung des bestehenden Gebäudes investiert. Details des historischen Bestands sind liebevoll restauriert und moderne Technologien implementiert – beispielsweise mit Smart-Building-Lösungen, die im MACO eine optimale Energieeffizienz ermöglichen und dazu beitragen, den ökologischen Fußabdruck zu minimieren.

Die Kombination aus traditionellen Materialien und innovativem Design symbolisiert unser Engagement für ökologische Verantwortung und CO2-Reduzierung. Mit seiner beeindruckenden Fassade repräsentiert das MACO Dynamik, Nachhaltigkeit und zeitlose Architektur. Daran knüpft auch das ästhetische Gebäudeinnere an: Holzdesign und eine umfangreiche Begrünung schaffen eine einladende Atmosphäre, die die Balance zwischen Natur und modernem Arbeitsumfeld findet.

Das einladende Entrée mit dem einzigartigen Gartrium ist ebenso wie die beeindruckende Dachterrasse mit Domblick ein Treffpunkt für Gespräche oder eine Oase für Entspannung und Kreativität – mitten in der Stadt. Ganz auf die Bedürfnisse in einer modernen Arbeitskultur zugeschnitten, bietet MACO flexible und vielseitige Arbeitsbereiche. Mit multifunktionalen Besprechungsräumen und Eventflächen bis hin zu einer eigenen Bar und einem Bistro erfüllt das Gebäude alle Anforderungen an eine zukunftsorientierte Büroimmobilie.

Im Sinne eines umweltfreundlichen und zukunftsfähigen Mobilitätskonzeptes, finden Sie im MACO neben einem Parkhaus mit digitalem Parkraummanagement eine erstklassige Fahrradinfrastruktur mit Mobilitätsstation. Diese bietet von ausreichend wettergeschützten Radabstellplätzen über E-Bike-Ladestationen bis hin zu Leihfahrrad-Angeboten und einer Werkstatt für kleine Reparaturen alles, was nachhaltiges und attraktives Pendeln fördert.










Das Gebäude, 1927 erbaut, durchlebte verschiedene Epochen. Im Krieg zerstört und später wiederaufgebaut, trug es jahrzehntelang das Gewand der 70er-Jahre. Zukünftig steht das MACO als Zeichen für Beständigkeit und Innovation. Die historische Bedeutung und zentrale Lage des Kunibertsviertels unterstreicht die Einzigartigkeit des MACO.



